이 주택은 대구 도심에서 그리 멀지 않은곳에 위치한다. 산과 작은개울이 있는 이 지역은 주택과 작은 단지들이 하나둘 들어서며 조금씩 마을의 풍경을 이루어가고 있는 곳이다. 초등학교 자녀들을 둔 젊은 부부는 아파트에서의 획일적인 삶을 변화시키고자 개인주택 생활을 계획한다. 자연발생적이지도 계획적이지도 않은 무분별하게 개발된 주택부지들 중 마을 끝자락에 위치한 곳에 땅을 마련하고 설계를 위해 찾아왔다.
집이 들어설 대지를 포함하여 이 지역에 개발된 부지들의 특성은 주택마다의 쾌적성과 마을의 풍경을 이루는 단지계획적인 측면의 배려보다는 땅을 개발한 사람들의 이익에 보다 충실하다. 땅의 형상과 도로와의 관계, 레벨, 향 등 대지의 조건들은 더 많은 분양을 위해 잘게 쪼개진 탓에 불합리하거나 불리한 조건의 땅들이 대부분이었다.
이러한 대지의 상황들을 극복하고 젊은 부부 가족이 꿈꿔왔던 여유있는 전원생활이 될수 있도록 하는것이 무엇보다 중요했다.

현장사진

건축주요구사항
“프라이버시가 무엇보다 중요하며 폐쇄적이고 외부접근이 현관으로만 이루어질 것, 밝은 집일 것, 실내는 갤러리 느낌의 주택일 것, 어디서든 아이들의 위치를 쉽게 파악할 수 있으며 복잡한 구조가 아닐 것, 겨울에 춥지 않을 것, 마당 관리 못하니 외부는 절대 조경설치 하지 않을 것, 각 방은 작아도 상관없으나 다른 모든 실들은 크고 쾌적할 것, 아이들 물놀이 가능한 목욕탕같은 큰 욕조가 있을 것. 천정은 아파트보다 높고 시원한 공간일 것, 외부 창고 공간 확보할 것등등“








대안검토



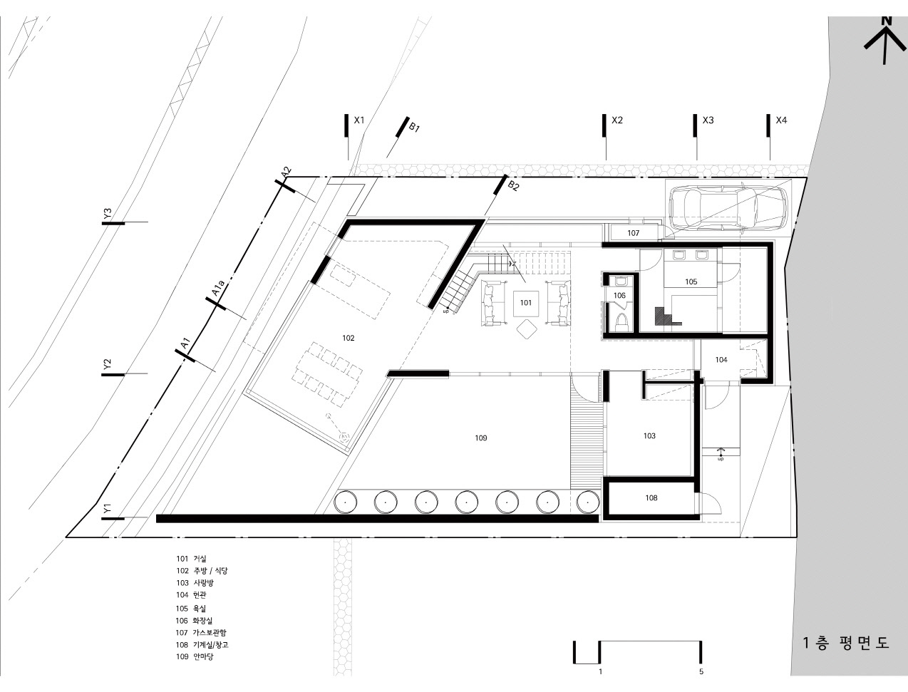
배치 및 평면계획 (각 실별 특징)
주변 경관을 최대한 많은 공간에서 즐길 수 있도록 하기 위한 개별공간의 구성과 배치가 중요했다. 또한 일체의 접근을 꺼려하는 건축주의 요구에 부합하도록 대지의 형상을 따르는 외부로부터 감싼 ‘ㄷ’자 형태가 되도록 하였다. 기능에 맞는 실의 개수와 크기들을 정하고 각 실들은 보이드 된 거실을 통해 각 기능들이 하나로 통합되도록 하였다. 이는 가족들이 어디에서나 서로 소통할 수 있는 공간적 특성을 제공한다. 아이들이 어디에 있든 확인이 가능하고 비교적 큰 규모에도 불구하고 어디에서든 대화가 가능하다. 또한 비워진 공간을 통해 충분한 채광이 이루어지며 프라이버시한 외부공간을 가질수 있도록 거실, 식당, 게스트룸과 연계된 안마당을 두어 가족의 휴식 및 외부활동이 가능하도록 하였다. 구축된 형태는 지극히 대지의 형상적 조건에 충실하였으며 버려진 공간이 없음과 동시에 가족들만 사용할 수 있는 마당공간을 원하는 건축주의 요구에 상응하는 대응이었다.
현관을 들어서면 반대쪽 식당과 풍경으로이어지는 열린시야를 갖도록 하였다.
높은 천정고와 2층까지 오픈된 거실은 시원함과 밝은 공간감을 제공한다. 이는 언제든 가족의 위치를 쉽게 파악할 수 있으며 단순 명료하다. 1층은 게스트룸과 거실, 주방, 식당 등 손님이 머물거나 가족이 공동으로 사용하는 공용공간이며 2층은 가족실, 방등 개인적인 공간이다. 주차장에서 다소 폐쇄적인 입면의 현관을 들어섬과 동시에 극히 사적 공간으로 인식되도록 하며 층으로 분리된 이러한 기능들은 주택 안에서도 개인공간과 공용공간으로 좀더 세분화 하였다.
오폰된 거실 안쪽(서측) 식당과 주방, 2층의 연결복도로만 통할 수 있는 가족실은 이 집의 상징적인 공간이다.
열려진 시야를 통해 들어오는 고즈넉한 마을의 풍경과 자연경관은 가족만이 즐길수 있는 가장 중요한 공간이 된다. 오랜 시간동안 머무르는 곳이기에 좋은 위치에 배치하고 개방감을 원하는 건축주 요구에 따라 통창을 두었다. (이 공간에서 보여 질 풍경은 여름의 내리쬐는 태양과 눈부신 석양마저 감내할 정도로 건축주를 매료시켰나 보다. 이러한 내용들을 건축주와 협의 하에 이루어진 것이며 부수적인 불편함은 캐노피 등의 다른 요소들로 조금이나마 상쇄하고자 했다)
실의 배치, 창의 위치와 크기는 각 기능이 필요로 하는 시간별 태양의 위치와 주변 환경에 의해 결정되었으며 밝은 집을 원하는 요구에 부합되도록 반영하였다.
방에 놓여지는 물건을 최소로 하고 싶다는 건축주 요구에 따라 모든방의 입구에 붙받이장을 설치하여 집기나 옷등 많은 수납이 이루어지도록 하였다.
입면 및 외부, 인테리어, 기타계획
장식과 디테일은 최대한 배제하며 재료는 단순화였다. 이는 설계 진행 중 늘어난 면적 탓에 한정된 공사비를 맞추기 위한 방안 중에 하나였다. 건축주가 갤러리 느낌의 집을 원했기에 외부는 상대적으로 저렴한 자재를 사용하고 인테리어에 좀 더 집중하였으며 하나의 재료로 통일 해 공정을 줄였다.
조경은 법정조경만 설치하고 외부바닥은 현무암으로 포장하였다. 거실, 식당, 주방과 연계된 외부공간은 다양한 쓰임이 가능하다.
옥상 계단실 주변으로 목재 데크를 설치해 간단한 파티가 가능하도록 하였다.






